Call to Artists – Request for Qualifications (RFQ)
Permanent Public Gateway Artwork(s) for Scarborough Town Centre Lands

Figure 1: Design rendering of the Site (25 Borough Drive). The Architect on this project is BDP Quadrangle.
Submission Deadline: September 30th, 2024, by 11:59PM EST
Oxford Properties Group (“Oxford”) and Kyla Radoja (the Public “Art Consultant”) are seeking to commission an artist or artist-led team to create new permanent Gateway public artwork(s) to be installed in a future Scarborough Town Centre master-planned community at the entrance(s) of a central pedestrian mews located at (25 Borough Drive, Scarborough, ON, Canada, the “Site”).
Project Brief
Scarborough City Centre is located on the traditional territory of many nations including the Mississaugas of the Credit, the Anishnabeg, the Chippewa, the Haudenosaunee and the Wendat peoples and is now home to many diverse First Nations, Inuit and Métis peoples.
Opportunity: Oxford and the Art Consultant are seeking to commission public artworks that are inviting, intriguing and inclusive within the site, and are compatible with the development’s architecture and landscape design. The Community’s voices should be included and reflected in their environment, to foster a sense of belonging, pride and empowerment in their community through engagement opportunities throughout the art project’s design processes, where applicable.
Deadline: This is a two-stage artist selection process. Up to five (5) artists will be shortlisted from this call by a selection Jury to develop their proposals. The deadline to submit Qualifications for this opportunity is September 30th, 2024 by 11:59PM EDT.
Award: The total budget for the artwork(s) is $755,000 + HST CAD.
Schedule: The anticipated installation of the artwork(s) on site is Spring, 2028. A mentorship component shall be integrated into the commissioned artist(s) project timeline plan.
More details of the site, opportunity, objectives, budget, schedule and selection strategy can be found on the following pages of this RFQ.
More details of the site, opportunity, objectives, budget, schedule and selection strategy can be found on the following pages of this RFQ. You can also download this full RFQ document directly as a Word or PDF file HERE. You are required to fill out and include the last page of the RFQ which is a Submission form, to be included with your application.
Project and Site Background
Oxford Properties Group (“Oxford”) is developing Brimley Block C, Scarborough Town Centre Lands at 25 Borough Drive, a mixed-use development located in Ward 21 in Scarborough Centre. The Architect on this project is BDP Quadrangle.The development site is bounded by Brimley Road to the west, Progress Avenue to the north, Borough Drive to the east, and Triton Road to the south. When completed, the development will feature 3 residential towers comprising of 45, 35 and 41-stories, on 7-storey podiums with a mid-block open space and a public park.
The mid-block pedestrian walkway connection (the mews) in the center of this development will provide access between Borough Drive and Brimley Road and will be a car-free space creating a safe and comfortable environment for the public to explore and enjoy, while supporting a more communal residentially-focused space for adjacent residents. The connection will contain a range of pedestrian amenities, including lighting, integrated seating and landscaped areas.
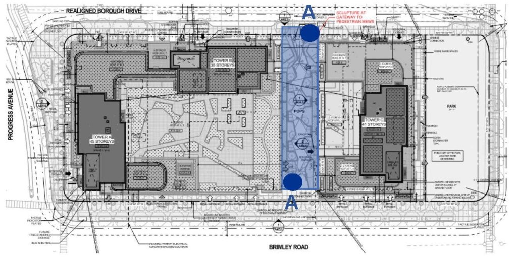
The public art projects proposed for this site should contribute to creating an attractive street environment for the community, resulting in a welcoming space for connection with special attention to the mid-block pedestrian mews (highlighted in blue below). The Artist can propose to have either two (2) sculptures total OR to create one (1) sculpture at one of the ends of the mews if they wish to create a larger piece that fits within budget and their desired design outcomes.
Further details regarding the community demographics, sites history and specifications will be shared with selected short-listed artists from the RFQ submissions, before they are asked to submit detailed proposals for this project in a Stage 2 Request for Proposals (RFP) process.

Figure 2: Rendering map of the site showing proposed location(s) of Gateway Artwork(s) outlined in blue
Location Key for above plan;
A. Pedestrian Mews Gateway Sculptures: One-Two (1-2) Gateway Sculptures (One Sculpture at Borough Drive and/or One Sculpture at Brimley Road).

Figure 3: View from Borough Drive: Area for one of the gateway sculptures shown in blue, either on one side or both sides of the pedestrian pathway. The artist can propose one-two sculptures total depending on the artists proposal and design development. The approx. volume/area available for each gateway sculpture is 45’x20’x35’ (wxhxd in feet) with 10’ maximum width on each side of the pathway, to fit inside the planter beds. The sculpture does not need to extend to both sides of the path (does not need to be an arch). Exact dimensions and plans will be shared in the Request for Proposals package with short-listed artists.
Eligibility
This is a public competition open to professional artists and artist-led teams* internationally.
All artists who apply will be reviewed by the Jury, with key consideration given to artists who identify as;
- Having a connection to the Scarborough community, such as living, born, school and/or involved with the community (past or present), which they will be asked to state on their application.
- Diverse individuals belonging to equity-deserving groups including but not limited to members of visible minority groups, Indigenous Peoples, persons with disabilities and LGBTQ2S+ communities.
*Per the Canada Council’s guidelines, a professional artist is defined as someone who has specialised artistic training (not necessarily in academic institutions), is a practicing artist, who is recognized as such by their peers, is active in and committed to their art practice, has a history of public exhibitions; and/or has produced an independent body of work. Flexibility may be required in interpreting eligibility criteria to take into account equivalent professional experience and contexts.
We encourage applications from all qualified candidates to apply and to reach out to the Art Consultant if you need any assistance or have questions when applying up until September 16th (2 weeks before) the application deadline, to give sufficient time for answers to your questions and any assistance needed.
Public Art Theme, Objectives and Opportunity
Up to five (5) artists will be shortlisted from this call to develop a proposal. Shortlisted artists will be asked to propose artwork(s) that reflect the project goals and objectives; to create works that are inviting and intriguing within the site and inclusive of the community’s voices.
A more detailed summary of the project will be provided to artists who are shortlisted for stage 2: Request for Proposals (RFP).
A. Theme
All themes are welcome for this public art project, however it is highly recommended that the artwork design has a connection to the site and Scarborough centre community, through a variety of ways including but not limited to; community engagement opportunities integrated within the design process, where applicable.
B. Public Art Objectives
The short-listed artists will be invited to develop proposals for artwork(s) to address the following objectives;
- Engagement: The proposed artworks should create dynamic and engaging pieces that add increased interest to the space and invite the public, visitors and residents to explore the mews.
- Public Use and Accessibility: The proposed artworks should enhance the overall public environment and pedestrian streetscape experience. The proposed artworks must ensure that Accessibility Design Guidelines are consulted in the design.
- Scale and Visibility: The proposed artworks should be thoughtfully integrated into the site to connect coherently to the scale, materiality and design of the architecture and landscape design, while being visible and accessible to the public on the site.
- Safety: The proposed artworks must comply with city safety standards; ensuring that security issues and vandalism are considered in the design and material selection.
- Quality: The proposed artworks must be of high quality in craftsmanship and consider aesthetic standards, site-specificity, site integration and artistic engagement. Selected materials must be durable and suit weather conditions, allowing for ease of maintenance over the long term (minimum of 10 years maintenance plan).
The artwork should complement the architecture and landscape design of this site, while aligning with the City’s Public Art Policy and The Percent for Public Art Program and Public Art Strategy (2020-2023), as well as taking into consideration The Scarborough Centre Public Art Master Plan.
C. Mentorship Opportunity
Mentorship provides a bridge toward the inclusion of emerging artists in Public Art. As part of the commitment to supporting artists’ professional development, a mentorship opportunity of a smaller sculpture public art project within the landscaped area within the mews will be created for an emerging artist. Within this program an additional $11,500 CAD + HST will be allocated to the Mentor and $11,500 CAD + HST to the Mentee to accommodate their time during this mentorship. There will also be a separate budget for the Mentee for their fees and costs associated with the smaller scale sculpture project.
The winning artist(s) of the Gateway Sculpture(s) (Area A) will be the mentor(s) to the smaller scale sculpture artist and will be part of the selection process in selecting the mentee.
The mentee will be completely responsible for their own project and the mentor will act as a guide and knowledge support only during the project’s process. It will be the responsibility of the Art Consultant to facilitate initial discussions and determine the unique roles and responsibilities of the mentor and mentee to make sure all parties are aligned.
The following objectives may be utilized, which can be adjusted through discussion facilitated and supported by the Art Consultant with the lead artist/mentor and mentee to create custom objectives for each project that are most relevant to the needs and desired learning objectives, as each mentor/mentee relationship and project are unique;
- Constructing a budget for a Public Art Project: Allocating appropriately to the artist’s fee, costs of production, and other associated costs.
- Communicating with clients: How to speak and write for those who are not artists.
- Project management and administration: Work planning, invoicing, etc.
- Considerations related to the design, production and installation of public art: Design drawings, approvals, materials, techniques, insurance and maintenance.
- Collaboration: Working with site teams, fabricators, engineers and others involved in a project.
- To gain experience: Working on a Public Art commission and growing their network with fabricators, developers and public artists, such that a mentored artist should feel better positioned to apply for future larger scale Public Art projects if desired.
Anticipated Budget
The total budget for all artist fees and expenses related to this project is $755,000 + HST in Canadian Dollars*
*This fee includes (but is not limited to): artist’s fees, site visit/s, travel costs, project meetings, drawings, concept development, community engagement, engineering fees, legal, insurance, transportation, site preparation (only as it pertains to the structure of the base of the sculpture(s) and how they are affixed securely to the site), materials, fabrication, installation, documentation of artwork process, contingency fee and any other associated costs required to execute public artworks. It is up to the artist(s) to break down their budget, including their artist fee to fit within the total budget.
Shortlisted artists selected by a Jury to participate in Stage 2: Request for Proposals (RFP) will be provided with a proposal honorarium fee of $2,000 CAD + HST per artist/artist team, for their time creating and submitting the detailed proposal.
For the mentorship component of this project, there is an additional $11,500 CAD + HST that will be paid to the mentor, to accommodate their time during this mentorship. There will also be a separate budget for the mentee for their time spent during the mentorship, as well as for their smaller scale sculpture project.
Aniticpated Schedule
| Project Phase | Timeline* |
| RFQ launches for Area A gateway sculpture(s) project | July 2024 (applications open for approx. 3 months) |
| RFQ Submission Deadline | September 30th, 2024 |
| Jury Selects up to five (5) Shortlisted Artists for Gateway Sculpture(s) | Week of October 21st, 2024 |
| RFP shared with shortlisted artists | Week of October 27th, 2024 (proposals due in approx. 3 months from this date) |
| RFP Proposals Deadline | January 27th, 2025 |
| Jury Selects Artist for Gateway Sculpture Project, contract execution | Week of February 10th, 2025 |
| Selection panel for the mentee artist for the smaller sculpture project (to include the lead Gateway Sculpture Artist in selecting the mentee) | Week of February 24th, 2025 |
| Artwork final design development, technical review, and community engagement. The Mentorship Process begins. | March 2025 – March 2026 (approx. 1 year) |
| Artwork Fabrication | March 2026 – March 2028 (approx. 2 years) |
| Artwork Installation. The Mentorship Process ends. | Mid 2028 (Spring/Summer) |
| Occupancy of Site | End of 2028 (Winter) |
Selection Process and Criteria
Artwork proposals are not requested at this time.This is a two-stage selection process, as outlined below;
- Stage One: Request for Qualifications (RFQ):
An art selection Jury will be comprised of arts professionals, community members, members from the project team and an indigenous community member, who will evaluate proposals against the following criteria:
- Qualifications and professional experience of the artist: As demonstrated in the Artist CV and Portfolio to demonstrate their experience of this scale and type of project.
- Approach and interest of the artist: As stated in the letter of intent and mentorship interest, outlining previous experiences, interest in this project and their desired learnings and support offerings for the mentorship opportunity.
- Artistic excellence, skill and knowledge in this type and scale of project: as evidenced in samples of previous work.
- Demonstrated ability of artist(s) to execute project within budget and timeline: as demonstrated from past work examples and CV.
All artists who apply will be carefully reviewed, with key consideration given to artists who identify as;
- Having a connection to the Scarborough community, such as living, born, school and/or involved with the community (past or present), which they will be asked to state on their application.
- Diverse individuals belonging to equity-deserving groups including but not limited to members of visible minority groups, Indigenous Peoples, persons with disabilities and LGBTQ2S+ communities.
2. Stage two: An Invited Request for Proposals (RFP)
Up to five (5) shortlisted artists/artist-led teams who are selected by the jury will be invited to respond to a detailed Request for Proposals package and each artist/artist team will be paid a $2,000 CAD + HST honorarium to develop, create and submit their site-specific proposal in the allocated time.
Stage 1 RFQ Submission Requirements
Professional artists/artist teams are invited to respond to this RFQ by submitting a single PDF document (total of 10-pages maximum). This PDF document must be labelled with the name of the artist and project (Artist Name_Stage 1 RFQ Gateway Artwork(s) for Scarborough Town Centre).
Each single PDF document must include the following:
- Submission Form: Please complete the Submission Form located on the last page of the RFQ document that you can download HERE and include it as the first page of your PDF document.*
- Letter of Intent: 1-page maximum. Outline of artistic experience, ability, approach and interest in this project, site and community, highlighting relevant experience. While proposals are not accepted at this stage of the competition, artists are welcome to speak to initial thoughts of the artwork objectives and potential themes in this letter.
- Artist Curriculum Vitae (CV): 2-page maximum detailing professional experience as an artist, past public art experience, and other information relevant to this RFQ. If applying as a team, provide one CV per team member, however please stay within the overall 10 pages maximum.
- Art Portfolio: Maximum of five (5) images of past artwork that best demonstrates your experience of this scale and type of public art project. For each image, a title and image number should be provided. If applying as a team, please only submit a total of five (5) images. Please include a written list that outlines the materials used for each project and the following details: Title, date, location, who commissioned the piece (if applicable), budget, dimensions, medium/materials and a brief description of the works (maximum 50 words each).
- Mentorship Interest: State any previous mentorship experience and your desired learnings and support offerings for this mentorship opportunity.
*If applying as a team, please list team members and submit required credentials for each. Please also only provide the contact information for the designated contact person.
Applications should be submitted via e-mail to Kyla Radoja, Public Art Consultant at; artconsulting@kylaradoja.com
Reserved Rights of Oxford Properties Group and the Art Consultant
Oxford Properties Group and the Art Consultant reserve the right to issue all public announcements regarding the competition and publish photos and videos of the final selected artwork(s) as part of communications, archival and/or marketing materials.
Additional Information
Applicants who need support applying for this opportunity are encouraged to contact Kyla Radoja (Public Art Consultant) by September 16th (2 weeks before), to appropriately accommodate your needs and to discuss alternate formats for submitting your application if needed.
For any additional information or questions, please contact Kyla Radoja, Public Art Consultant at; artconsulting@kylaradoja.com