Call to Artists – EXPRESSION OF INTEREST (EOI)
Permanent Public Pedestrian Mews Artwork for Scarborough Town Centre Lands

Figure 1: Design rendering of the Site (25 Borough Drive). The Architect on this project is BDP Quadrangle.
Submission Deadline: February 3rd, 2025, by 11:59PM EDT
Oxford Properties Group (“Oxford”) and Kyla Radoja (the Public “Art Consultant”) are seeking to commission an emerging artist within Canada to create a new permanent public artwork to be installed in a future Scarborough Town Centre master-planned community within a pedestrian mews located at (25 Borough Drive, Scarborough, ON, Canada, the “Site”).
Project Brief
Scarborough City Centre is located on the traditional territory of many nations including the Mississaugas of the Credit, the Anishnabeg, the Chippewa, the Haudenosaunee and the Wendat peoples and is now home to many diverse First Nations, Inuit and Métis peoples.
Opportunity: Oxford and the Art Consultant are seeking to commission public artworks that are inviting, intriguing and inclusive within the site, and are compatible with the development’s architecture and landscape design. The Community’s voices should be included and reflected in their environment, to foster a sense of belonging, pride and empowerment in their community through engagement opportunities throughout the art project’s design processes, where applicable.
Mentorship: This is a smaller-scale public art project opportunity, as well as a mentorship opportunity. The winning artist of this project shall have the opportunity to be mentored and guided by an established public artist who is creating their own larger public art project on this site.
Deadline: The deadline to submit Expressions of Interest (EOI) for this opportunity is February 3rd, 2025 by 11:59PM EDT.
Award: The total budget for the artwork(s) is $120,000 + HST CAD.
For the mentorship component of this project, there is an additional $11,500 CAD + HST that will be paid to the mentee to accommodate their time during this mentorship. There will also be a separate budget for the mentor for their time spent during the mentorship, so neither of these costs need to be covered within the $120,000 project budget.
Schedule: The anticipated installation of the artwork(s) on site is Spring, 2028.
More details of the site, opportunity, objectives, budget, schedule and selection strategy can be found on the following pages of this EOI. You can also download this full EOI document directly as a Word or PDF file HERE. You are required to fill out and include the last page of the EOI which is a Submission form, to be included with your application.
Project and Site Background
Oxford Properties Group (“Oxford”) is developing Brimley Block C, Scarborough Town Centre Lands at 25 Borough Drive, a mixed-use development located in Ward 21 in Scarborough Centre. The Architect on this project is BDP Quadrangle. The development site is bounded by Brimley Road to the west, Progress Avenue to the north, Borough Drive to the east, and Triton Road to the south. When completed, the development will feature 3 residential towers comprising of 45, 35 and 41-stories, on 7-storey podiums with a mid-block open space and a public park.
The mid-block pedestrian walkway connection (the mews) in the center of this development will provide access between Borough Drive and Brimley Road and will be a car-free space creating a safe and comfortable environment for the public to explore and enjoy, while supporting a more communal residentially-focused space for adjacent residents. The connection will contain a range of pedestrian amenities, including lighting, integrated seating and landscaped areas.
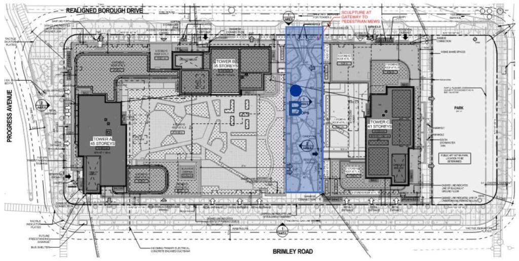
The public art projects proposed for this site should contribute to creating an attractive street environment for the community, resulting in a welcoming space for connection with special attention to the mid-block pedestrian mews (highlighted in blue below). The Artist can propose to have one (1) sculpture within the landscaped areas within the pedestrian walkway/mews.

Figure 2: Rendering map of the site showing proposed location of the Pedestrian Mews Artwork outlined in blue
Location Key for above plan;
B: Pedestrian Mews Pathway: One human-scale installation to work within a landscaped area in the pedestrian mews

Figure 3: View Inside Pedestrian Mews: Area for the one smaller human-scale sculpture, to be designed by an emerging artist who will have support from the Art Consultant and the Mentor artist who will be working on their own larger gateway sculpture project at the end(s) of the mews, with input and approvals from the site team for design development, fabrication and installation of the sculpture. The approximate volume/area available for sculpture is 6’x8’x6’ (wxhxd in feet). Exact dimensions and plans will be shared with the winning artist to further develop their concept design.
Eligibility
This is a public competition open to emerging artists* within Canada.
All artists who apply within Canada will be reviewed by the selection panel, with key consideration given to artists who identify as;
- Having a connection to the Scarborough community, such as living, born, school and/or involved with the community (past or present), which they will be asked to state on their application.
- Diverse individuals belonging to equity-deserving groups including but not limited to members of visible minority groups, Indigenous Peoples, persons with disabilities and LGBTQ2S+ communities.
*An emerging artist is defined as someone who has some training, experience or accomplishments in one or more fields of artistic practice, however who has little to no experience in the Public Art realm. Past training could include mentorship, self-study, workshops, etc. Training in an academic institution is not mandatory. The artist should be committed to the ongoing development of their skills and artistic practice.
We encourage applications from all qualified candidates within Canada to apply and to reach out to the Art Consultant if you need any assistance or have questions when applying up until January 20th, 2025 (2 weeks before) the application deadline, to give sufficient time for answers to your questions and any assistance needed.
Public Art Theme, Objectives and Opportunity
Artists are asked to propose initial artwork concepts that reflect the project goals and objectives; to create works that are inviting and intriguing within the site and inclusive of the community’s voices.
A more detailed summary of the project will be provided to the winning artist, so that they can develop their initial concept further and they will be supported/guided by the Mentor, Art Consultant and Site Team throughout the process.
A. Theme
All themes are welcome for this public art project, however it is highly recommended that the artwork design has a connection to the site and Scarborough centre community, through a variety of ways including but not limited to; Scarborough community theme within the design, community engagement opportunities integrated within the design process and/or interactive elements within the design itself, where applicable.
B. Public Art Objectives
Artists are invited to submit their interest and initial concept proposals for artwork that addresses the following objectives;
- Engagement: The proposed artwork should create dynamic and engaging pieces that add increased interest to the space and invite the public, visitors and residents to explore the mews.
- Public Use and Accessibility: The proposed artwork should enhance the overall public environment and pedestrian streetscape experience, while ensuring that Accessibility Design Guidelines are consulted in the design.
- Scale and Visibility: The proposed artwork should be thoughtfully integrated into the site to connect coherently to the scale, materiality and design of the architecture and landscape design, while being visible and accessible to the public on the site.
- Safety: The proposed artwork must comply with city safety standards; ensuring that security issues and vandalism are considered in the design and material selection.
- Quality: The proposed artwork must be of high quality in craftsmanship and consider aesthetic standards, site-specificity, site integration and artistic engagement. Selected materials must be durable and suit weather conditions, allowing for ease of maintenance over the long term (minimum of 10 years maintenance plan).
The artwork should complement the architecture and landscape design of this site, while aligning with the City’s Public Art Policy and The Percent for Public Art Program and Public Art Strategy (2020-2023), as well as taking into consideration The Scarborough Centre Public Art Master Plan.
C. Mentorship Opportunity
Mentorship provides a bridge toward the inclusion of emerging artists in Public Art. As part of the commitment to supporting artists’ professional development, a mentorship opportunity of a smaller sculpture public art project within the landscaped area within the mews has been created for an emerging artist. Within this program $11,500 CAD + HST will be allocated to the Mentee and $11,500 CAD + HST to the Mentor to accommodate their time during this mentorship separate from the project budget.
The winning artist(s) of the larger Gateway Sculpture(s) will be the mentor(s) to this artists and will be part of the selection process in selecting the mentee for this Pedestrian Mews Sculpture opportunity.
The mentee will be completely responsible for their own project and the mentor will act as a guide and knowledge support only during the project’s process. It will be the responsibility of the Art Consultant to facilitate initial discussions and determine the unique roles and responsibilities of the mentor and mentee to make sure all parties are aligned.
The following objectives may be utilized, which can be adjusted through discussion facilitated and supported by the Art Consultant with the lead artist/mentor and mentee to create custom objectives for each project that are most relevant to the needs and desired learning objectives, as each mentor/mentee relationship and project are unique;
- Constructing a budget for a Public Art Project: Allocating appropriately to the artist’s fee, costs of production, and other associated costs.
- Communicating with clients: How to speak and write for those who are not artists.
- Project management and administration: Work planning, invoicing, etc.
- Considerations related to the design, production and installation of public art: Design drawings, approvals, materials, techniques, insurance and maintenance.
- Collaboration: Working with site teams, fabricators, engineers and others involved in a project.
- To gain experience: Working on a Public Art commission and growing their network with fabricators, developers and public artists, such that a mentored artist should feel better positioned to apply for future larger scale Public Art projects if desired.
Mentorship can look very different within each project and relationship, therefore the most appropriate types of learning structures for this project will be co-created by the Mentor and Mentee, facilitated by the Art Consultant and can include elements such as (but not limited to); Virtual and/or in-person meetings, presentations, case studies and shadowing opportunities.
Anticipated Budget
The total budget for all artist fees and expenses related to this project is $120,000 + HST in Canadian Dollars*
*This fee includes (but is not limited to): artist’s fees, site visit/s, travel costs, project meetings, drawings, concept development, community engagement, engineering fees, legal, insurance, transportation, site preparation (only as it pertains to the structure of the base of the sculptures and how they are affixed securely to the site), materials, fabrication, installation, documentation of artwork process, contingency fee and any other associated costs required to execute public artworks. It is up to the artist(s) to break down their budget, including their artist fee to fit within the total budget.
For the mentorship component of this project, there is an additional $11,500 CAD + HST that will be paid to the mentee, to accommodate their time during this mentorship. There will also be a separate budget for the mentor for their time spent during the mentorship, so this does not need to be taken from the project budget.
Aniticpated Schedule
| Project Phase | Timeline* |
| EOI launches for the pedestrian mews sculpture project (with mentorship component) | October 2024 (applications open for approx. 4 months) |
| EOI Deadline | February 3rd, 2025 |
| Jury Selects the Artist for the larger Gateway Sculpture Project, who will be the mentor for this project | Week of February 10th, 2025 |
| Selection panel selects the mentee artist for this Pedestrian Mews Sculpture project | Week of February 24th, 2025 |
| Artwork final design development, technical review, and community engagement. The Mentorship Process begins. | March 2025 – March 2026 (approx. 1 year) |
| Artwork Fabrication | March 2026 – March 2028 (approx. 2 years) |
| Artwork Installation. The Mentorship Process ends. | Mid 2028 (Spring/Summer) |
| Occupancy of Site | End of 2028 (Winter) |
Selection Process and Criteria
Detailed Artwork proposals are not requested at this time.This is an Expression Of Interest for emerging artists to submit initial high-level concepts, to give an overall sense of initial direction only.
- Expressions of Interest (EOI):
An artist selection Jury will be comprised of members from the project team and the professional artist who will be the mentor for this project, who will evaluate proposals against the following criteria:
- Approach and interest of the artist: As stated in the Expression Of Interest Statement and mentorship interest, outlining previous experiences, interest in this project and their desired learnings and support offerings for the mentorship opportunity.
- Strength and imagination of past work and the current concept: as evidenced in samples of any previous work and current initial concept.
- Demonstrated ability of artist(s) to execute projects within budget and timeline: as demonstrated from past work examples and CV. Please note that this can be any type of previous artworks and does not need to be public art projects if the artist does not yet have this type of experience.
All artists who apply will be carefully reviewed, with key consideration given to artists who identify as;
- Having a connection to the Scarborough community, such as living, born, school and/or involved with the community (past or present), which they will be asked to state on their application.
- Emerging Artists who are new to or trying to work within public art. Artists with some previous experience in creating sculptural works at any scale is an asset, but not compulsory.
- Diverse individuals belonging to equity-deserving groups including but not limited to members of visible minority groups, Indigenous Peoples, persons with disabilities and LGBTQ2S+ communities.
Submission Requirements
Emerging artists within Canada are invited to respond to this EOI by submitting a single PDF document (total of 10-pages maximum). This PDF document must be labeled with the name of the artist and project (Artist Name_EOI Pedestrian Mews Artwork for Scarborough Town Centre).
Each single PDF document must include the following:
- Submission Form: (1 page) Please complete the Submission Form located on the last page of the EOI document that you can access and download HERE and include it as the first page of your PDF document.
- EOI and Concept Statement: (1-page maximum). Outline of artistic experience, ability, approach and interest in this project, site and community, highlighting any relevant experience. Detailed proposals are not asked for at this stage, however artists should speak to their initial concept design thoughts as it relates to the public artwork objectives and themes.
- Concept Sketch: (2-page maximum). Detailed proposals are not asked for at this stage, however artists should share an initial sketch and/or mood board outlining their initial concept design thoughts for this project visually.
- Artist Curriculum Vitae (CV): (2-page maximum) detailing any professional experience as an artist, past public art experience (if any), and other information relevant to this EOI.
- Art Portfolio: (3-page maximum) with images of past artwork that best demonstrates your experience. For each image, a title and image number should be provided. Please include a written list that outlines the materials used for each project and the following details: Title, date, location, who commissioned the piece (if applicable), budget, dimensions, medium/materials and a brief description of the works (maximum 50 words each).
- Mentorship Interest: (1-page maximum). State any previous mentorship experience and your desired learnings and interest for this mentorship opportunity.
Applications should be submitted via e-mail to Kyla Radoja, Public Art Consultant at; artconsulting@kylaradoja.com
Reserved Rights of Oxford Properties Group and the Art Consultant
Oxford Properties Group and the Art Consultant reserve the right to issue all public announcements regarding the competition and publish photos and videos of the final selected artwork(s) as part of communications, archival and/or marketing materials.
Additional Information
Applicants who need support applying for this opportunity are encouraged to contact Kyla Radoja (Public Art Consultant) by January 20th, 2025 (2 weeks before) to appropriately accommodate your needs and to discuss alternate formats for submitting your application if needed.
For any additional information or questions, please contact Kyla Radoja, Public Art Consultant at; artconsulting@kylaradoja.com
Appendix A: Additional Plans and Visuals
You can find plans and visuals of the site, which gives more details of the overall site that you can utilize as part of your concept images/sketches. Please note that these visuals/plans should not be shared with any third party and are only to be utilized as it pertains to your concept sketches/visual board as part of your high-level concept submission for the EOI.